Gerne stehe ich Ihnen jederzeit zur Verfügung.
Apartment- bzw. Mehrparteienhaus
- 387 m²
- 9
- 7
- 11
- 1941 m²
Energieausweis
HWB-Klasse: E
HWB-Wert: 158.00 kWh/m²a
FGEE-Klasse: D
FGEE-Wert: 2.05 kWh/m²a
Objektbeschreibung
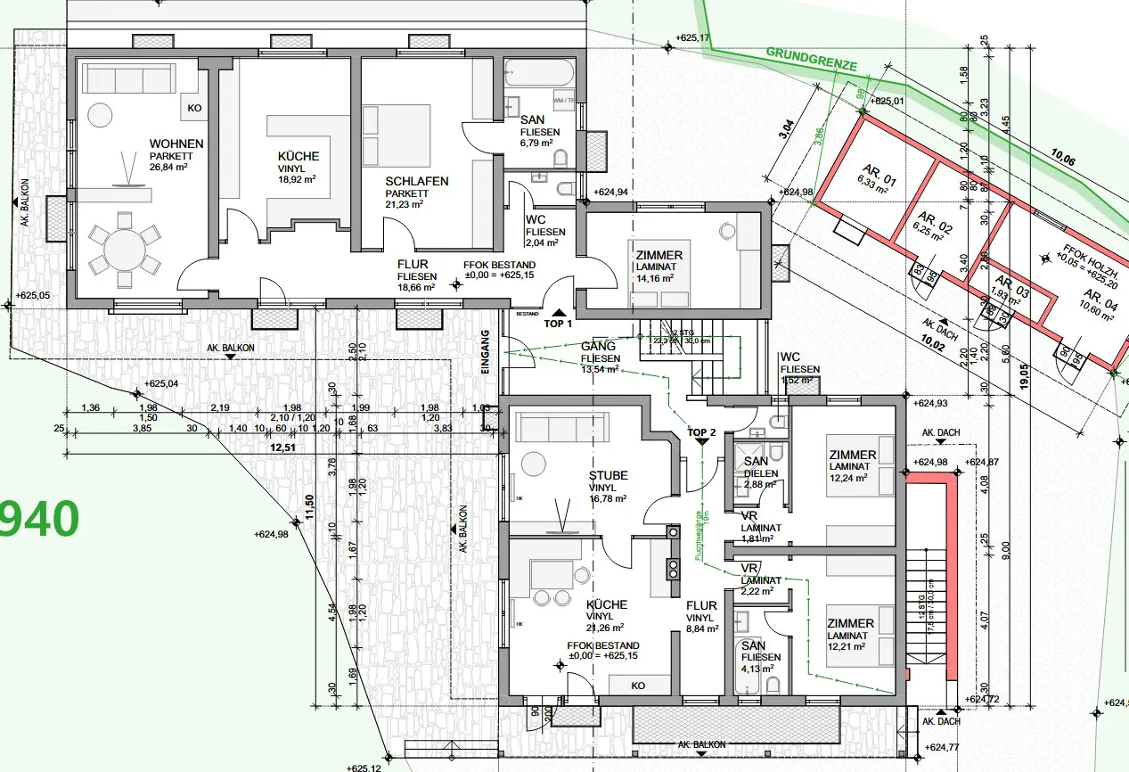
Das Apartment bzw. Mehrparteienhaus liegt in Erpfendorf in der politischen Gemeine Kirchdorf in Tirol.
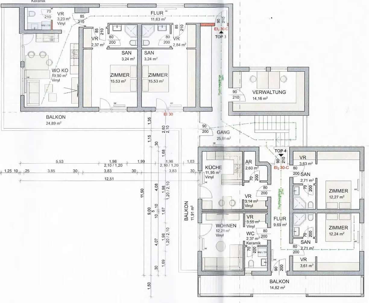
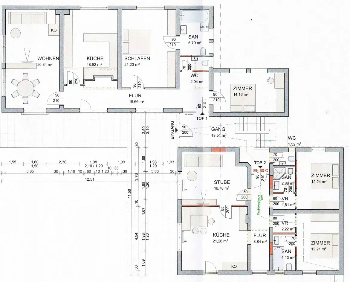
Das Haus besteht aus 4 Wohnungen die insgesamt eine reine Wohnfläche von 387,12 m² haben:
TOP 1
Wohnfläche: 108,64 m²
Kellerraum: 21,66 m²
2 Freistellplätze
Gartenanteil
TOP 2
Wohnfläche: 82,37 m²
Kellerraum: 36,68 m²
2 Freistellplätze
Holzhütte mit 25,11 m²
Gartenanteil
TOP 3
Wohnfläche: 113,43 m²
Kellerraum: 21,66 m²
2 Freistellplätze
Balkon: 24,89 m²
Dachboden: 103,24 m²
TOP 4
Wohnfläche: 82,68 m²
Kellerraum: 26,73 m²
2 Freistellplätze
Balkon: 26,73 m²
Dachboden: 96,05 m²
Nach den oben aufgeführten Angaben wird aktuell ein Teilungsgutachten erstellt und genehmigt.
Im Exposé befinden sich noch die Grundrisse von 1974 bzw. die Pläne der Erweiterung 1985.
Das Haus besteht aus 4 Wohnungen die insgesamt eine reine Wohnfläche von 387,12 m² haben:
TOP 1
Wohnfläche: 108,64 m²
Kellerraum: 21,66 m²
2 Freistellplätze
Gartenanteil
TOP 2
Wohnfläche: 82,37 m²
Kellerraum: 36,68 m²
2 Freistellplätze
Holzhütte mit 25,11 m²
Gartenanteil
TOP 3
Wohnfläche: 113,43 m²
Kellerraum: 21,66 m²
2 Freistellplätze
Balkon: 24,89 m²
Dachboden: 103,24 m²
TOP 4
Wohnfläche: 82,68 m²
Kellerraum: 26,73 m²
2 Freistellplätze
Balkon: 26,73 m²
Dachboden: 96,05 m²
Nach den oben aufgeführten Angaben wird aktuell ein Teilungsgutachten erstellt und genehmigt.
Im Exposé befinden sich noch die Grundrisse von 1974 bzw. die Pläne der Erweiterung 1985.
Ausstattung
Short facts:
- Top Preis-Leistung: EUR 3.443,15/m² Wohnfläche
- 4 Wohnungen mit insgesamt 387 m²
- Große Gartenfläche - 1.941 m² Grundstück
- 11 Parkplätze, sehr geräumiger Keller
- Erweiterbar
- Renditestarkes Objekt
- Top Preis-Leistung: EUR 3.443,15/m² Wohnfläche
- 4 Wohnungen mit insgesamt 387 m²
- Große Gartenfläche - 1.941 m² Grundstück
- 11 Parkplätze, sehr geräumiger Keller
- Erweiterbar
- Renditestarkes Objekt
Lage
Kirchdorf in Tirol liegt eingebettet in den Kitzbüheler Alpen und besticht durch seine idyllische Bergkulisse sowie den charmanten, ländlichen Charakter.
Die Gemeinde bietet optimales Wohnen für Familien durch kurze Wege zu regionalen Freizeitangeboten wie Skigebieten, Wander- und Radwegen – ideal für Ganzjahresaktivitäten. Eine solide lokale Infrastruktur mit Nahversorgung, Bildungseinrichtungen und Vereinsangeboten sorgt für hohe Lebensqualität im Alltag. Gute Verkehrsanbindung macht Orte wie Kitzbühel und St. Johann komfortabel erreichbar.
Damit eignet sich Kirchdorf besonders für Familien, Pendler und Natur- sowie Sportbegeisterte, die naturnahes Wohnen mit guter Erreichbarkeit verbinden möchten.
Die Gemeinde bietet optimales Wohnen für Familien durch kurze Wege zu regionalen Freizeitangeboten wie Skigebieten, Wander- und Radwegen – ideal für Ganzjahresaktivitäten. Eine solide lokale Infrastruktur mit Nahversorgung, Bildungseinrichtungen und Vereinsangeboten sorgt für hohe Lebensqualität im Alltag. Gute Verkehrsanbindung macht Orte wie Kitzbühel und St. Johann komfortabel erreichbar.
Damit eignet sich Kirchdorf besonders für Familien, Pendler und Natur- sowie Sportbegeisterte, die naturnahes Wohnen mit guter Erreichbarkeit verbinden möchten.
Ihre Ansprechpartner
Birgit Gogl & Thomas Neuner
Gerne stehen wir Ihnen jederzeit für Fragen zur Verfügung!
Noch Fragen
Gerne bin ich für Sie da!
Tel:
+43 5352 21 696
Mail:
thomas@neuner.immo