Gerne stehe ich Ihnen jederzeit zur Verfügung.
Altbestand in Sonnen- Aussichtslage - Freizeitwohnsitz
Energieausweis
Energieausweis in Arbeit
Objektbeschreibung
Das Grundstück mit 758 m² liegt in bester Lage am Sonnberg von Brixen im Thale. Die Mikrolage am Ende einer Sackgasse, am Waldrand in kompletter Südausrichtung ist eine wirkliche Besonderheit.
Der Altbestand verfügt über eine Freizeitwohnsitzwidmung.
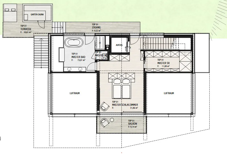
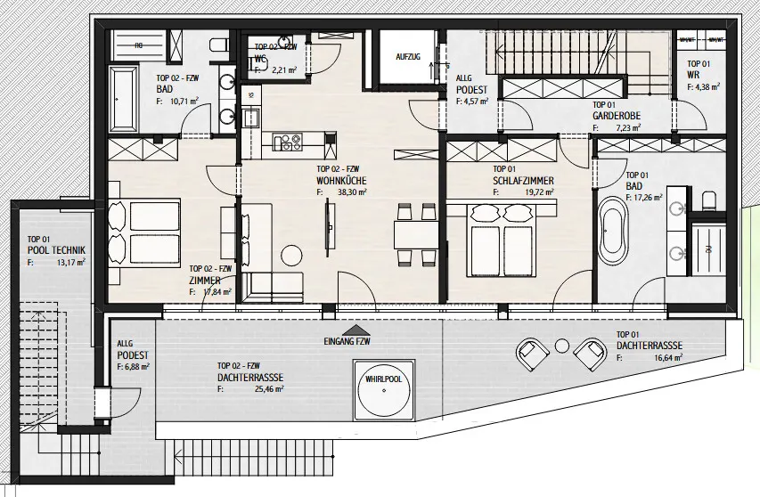
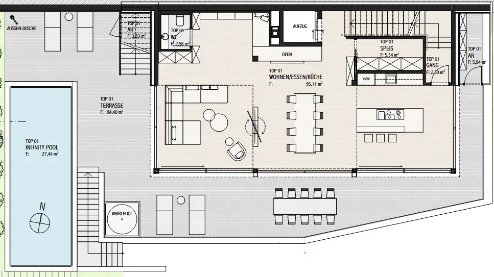
Es gibt bereits einen genehmigter Baubescheid für ein
Zweifamilienhaus mit ca. 310 m² Wohnfläche.
Die Möglichkeit diese Liegenschaft mit der fertig gebauten neuen Planung zu erwerben ist gegeben.
Der Altbestand verfügt über eine Freizeitwohnsitzwidmung.
Es gibt bereits einen genehmigter Baubescheid für ein
Zweifamilienhaus mit ca. 310 m² Wohnfläche.
Die Möglichkeit diese Liegenschaft mit der fertig gebauten neuen Planung zu erwerben ist gegeben.
Lage
Brixen im Thale ist ein malerisches Dorf in Tirol, bekannt für seine sonnige Lage, vielfältigen Freizeitmöglichkeiten und das nahegelegene Skigebiet Skiwelt Wilder Kaiser – Brixental. Es bietet eine ruhige Atmosphäre, gute Infrastruktur und Zugang zu Outdoor-Aktivitäten im Sommer wie im Winter.
Ihre Ansprechpartner
Birgit Gogl & Thomas Neuner
Gerne stehen wir Ihnen jederzeit für Fragen zur Verfügung!
Noch Fragen
Gerne bin ich für Sie da!
Tel:
+43 5352 21 696
Mail:
thomas@neuner.immo