Gerne stehe ich Ihnen jederzeit zur Verfügung.
Renoviertes Mehrfamilienhaus in ruhiger Lage
- 262 m²
- 6
- 3
- 5
- 731 m²
Energieausweis
HWB-Klasse: E
HWB-Wert: 146.20 kWh/m²a
FGEE-Klasse: D
FGEE-Wert: 1.86 kWh/m²a
Objektbeschreibung
Attraktives Mehrfamilienhaus in Hopfgarten im Brixental, ideal als Anlageobjekt oder für Mehrgenerationenwohnen.
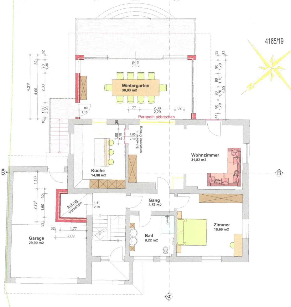
Das Gebäude erstreckt sich über drei oberirdische Etagen, wobei jede Etage als eigenständige Wohnung mit separater Küche ausgeführt ist; insgesamt stehen 6 Schlafzimmer und 3 Küchen zur Verfügung.
Im Kellergeschoss befinden sich vielseitig nutzbare Nebenräume inklusive Sauna, Werkstatt, Skikeller und weiteren Lagerräumen. 2020 wurde das Haus komplett renoviert und präsentiert sich seitdem in gepflegtem, modernisiertem Zustand.
Dank der Lage in Hopfgarten profitieren Sie von guter Anbindung sowie dem unmittelbaren Zugang zu Freizeitangeboten wie Skigebiet und Wanderwegen.
Das Gebäude erstreckt sich über drei oberirdische Etagen, wobei jede Etage als eigenständige Wohnung mit separater Küche ausgeführt ist; insgesamt stehen 6 Schlafzimmer und 3 Küchen zur Verfügung.
Im Kellergeschoss befinden sich vielseitig nutzbare Nebenräume inklusive Sauna, Werkstatt, Skikeller und weiteren Lagerräumen. 2020 wurde das Haus komplett renoviert und präsentiert sich seitdem in gepflegtem, modernisiertem Zustand.
Dank der Lage in Hopfgarten profitieren Sie von guter Anbindung sowie dem unmittelbaren Zugang zu Freizeitangeboten wie Skigebiet und Wanderwegen.
Ausstattung
- Haus wurde 2020 komplett renoviert
- Aufzug
- Wärmepumpe
- Photovoltaikanlage auf dem Dach
- Auf jeder Etage eine Küche
- Gartenhaus
- sehr ruhige Lage
- Skikeller - Zugang von außen
- Aufzug
- Wärmepumpe
- Photovoltaikanlage auf dem Dach
- Auf jeder Etage eine Küche
- Gartenhaus
- sehr ruhige Lage
- Skikeller - Zugang von außen
Lage
Hopfgarten im Brixental liegt malerisch eingebettet in den Kitzbüheler Alpen und bietet eine eindrucksvolle Bergkulisse.
Die Gemeinde ist Teil der SkiWelt Wilder Kaiser–Brixental und eignet sich daher hervorragend für Wintersport, gleichzeitig eröffnet die umliegende Natur im Sommer vielfältige Möglichkeiten zum Wandern und Mountainbiken. Trotz der naturnahen Lage verfügt Hopfgarten über eine solide Infrastruktur mit Einkaufsmöglichkeiten, Gastronomie, Kindergarten und Schulen sowie zahlreichen Freizeit- und Sportangeboten.
Gute regionale Anbindungen machen Orte wie Kitzbühel und das Inntal komfortabel erreichbar, sodass Stadt- und Urlaubskomfort ideal kombiniert werden. Ruhige Wohnlagen, gepflegte Ortskerne und weite Aussichtspunkte sorgen für hohe Wohnqualität und eine angenehme Lebensqualität.
Die Gemeinde ist Teil der SkiWelt Wilder Kaiser–Brixental und eignet sich daher hervorragend für Wintersport, gleichzeitig eröffnet die umliegende Natur im Sommer vielfältige Möglichkeiten zum Wandern und Mountainbiken. Trotz der naturnahen Lage verfügt Hopfgarten über eine solide Infrastruktur mit Einkaufsmöglichkeiten, Gastronomie, Kindergarten und Schulen sowie zahlreichen Freizeit- und Sportangeboten.
Gute regionale Anbindungen machen Orte wie Kitzbühel und das Inntal komfortabel erreichbar, sodass Stadt- und Urlaubskomfort ideal kombiniert werden. Ruhige Wohnlagen, gepflegte Ortskerne und weite Aussichtspunkte sorgen für hohe Wohnqualität und eine angenehme Lebensqualität.
Ihre Ansprechpartner
Birgit Gogl & Thomas Neuner
Gerne stehen wir Ihnen jederzeit für Fragen zur Verfügung!
Noch Fragen
Gerne bin ich für Sie da!
Tel:
+43 5352 21 696
Mail:
thomas@neuner.immo