Gerne stehe ich Ihnen jederzeit zur Verfügung.
Bürofläche oder Praxis
- 116 m²
- 2
- 2 m²
Energieausweis
Energieausweis in Arbeit
Objektbeschreibung
Das Büro bzw. die Praxis befindet sich im „Hochparterre“ eines Bürogebäudes mit Blick zur Kitzbüheler Ache und ins Grüne.
Die Räumlichkeiten sind nach Nordwest und Südwest ausgerichtet, ruhig und von Tageslicht durchflutet. Eingänge über Parkplatz Südwest oder Parkplatz Nordwest, Parkplätze stehen zur Verfügung.
Personenlift vorhanden.
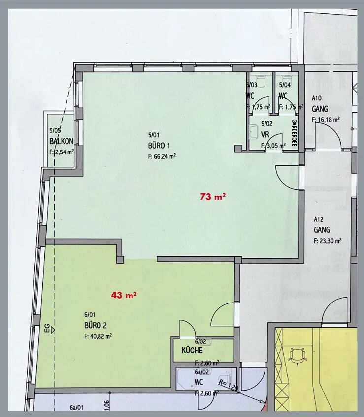
Die Bürofläche besteht aus 2 zusammengelegten Einheiten, die aber auch einzeln verkauft werden können.
Die Räumlichkeiten sind nach Nordwest und Südwest ausgerichtet, ruhig und von Tageslicht durchflutet. Eingänge über Parkplatz Südwest oder Parkplatz Nordwest, Parkplätze stehen zur Verfügung.
Personenlift vorhanden.
Die Bürofläche besteht aus 2 zusammengelegten Einheiten, die aber auch einzeln verkauft werden können.
Ausstattung
Büro 1: 73 m²
Büro 2: 43 m²
Gesamtfläche: 116 m²
Kaufpreis pro m² EUR 6.500,00 netto
2 Tiefgaragenstellplätze (1 x mit E Ladestation)
Heizung: Gas
Betriebskosten können auf Wunsch mitgeteilt werden.
Büro 2: 43 m²
Gesamtfläche: 116 m²
Kaufpreis pro m² EUR 6.500,00 netto
2 Tiefgaragenstellplätze (1 x mit E Ladestation)
Heizung: Gas
Betriebskosten können auf Wunsch mitgeteilt werden.
Lage
Direkt vor der Haustüre dieses Büros bzw. Praxis beginnt ein Geh- und Radweg, der Sie in wenigen Minuten zu den wichtigsten Einrichtungen des täglichen Bedarfs führt. Einkaufsmöglichkeiten erreichen Sie fußläufig in etwa fünf Minuten, die charmante Fußgängerzone im Zentrum von Kitzbühel liegt nur rund zehn Gehminuten entfernt.
Die Bushaltestelle (auch Skibus) befindet sich ebenfalls gleich in der Nähe.
Kitzbühel gilt als die Sportstadt im Herzen der Alpen, wo Tradition auf modernen Lifestyle trifft. Der historische Stadtkern bietet zahlreiche Restaurants, gemütliche Cafés, Bars, Discotheken. Das Casino und das Kino und sorgen für ein abwechslungsreiches Freizeitangebot.
Wunderschöne Wander- und Radtouren können direkt gestartet werden. Das malerische Natur- und Erholungsgebiet Schwarzsee lädt im Sommer zum Entspannen und Verweilen ein.
Kitzbühel liegt eingebettet zwischen dem Kitzbüheler Horn und dem Hahnenkamm. Die Städte Innsbruck (95 km), Salzburg (80 km) und München (120 km) sind jeweils in etwa einer Stunde erreichbar.
Die Bushaltestelle (auch Skibus) befindet sich ebenfalls gleich in der Nähe.
Kitzbühel gilt als die Sportstadt im Herzen der Alpen, wo Tradition auf modernen Lifestyle trifft. Der historische Stadtkern bietet zahlreiche Restaurants, gemütliche Cafés, Bars, Discotheken. Das Casino und das Kino und sorgen für ein abwechslungsreiches Freizeitangebot.
Wunderschöne Wander- und Radtouren können direkt gestartet werden. Das malerische Natur- und Erholungsgebiet Schwarzsee lädt im Sommer zum Entspannen und Verweilen ein.
Kitzbühel liegt eingebettet zwischen dem Kitzbüheler Horn und dem Hahnenkamm. Die Städte Innsbruck (95 km), Salzburg (80 km) und München (120 km) sind jeweils in etwa einer Stunde erreichbar.
Ihre Ansprechpartner
Birgit Gogl & Thomas Neuner
Gerne stehen wir Ihnen jederzeit für Fragen zur Verfügung!
Noch Fragen
Gerne bin ich für Sie da!
Tel:
+43 5352 21 696
Mail:
thomas@neuner.immo