Gerne stehe ich Ihnen jederzeit zur Verfügung.
Möblierte Dachgeschoßwohnung im Zentrum
- 85 m²
- 2
- 2
- 2
- 60 m²
Energieausweis
Energieausweis in Arbeit
Objektbeschreibung
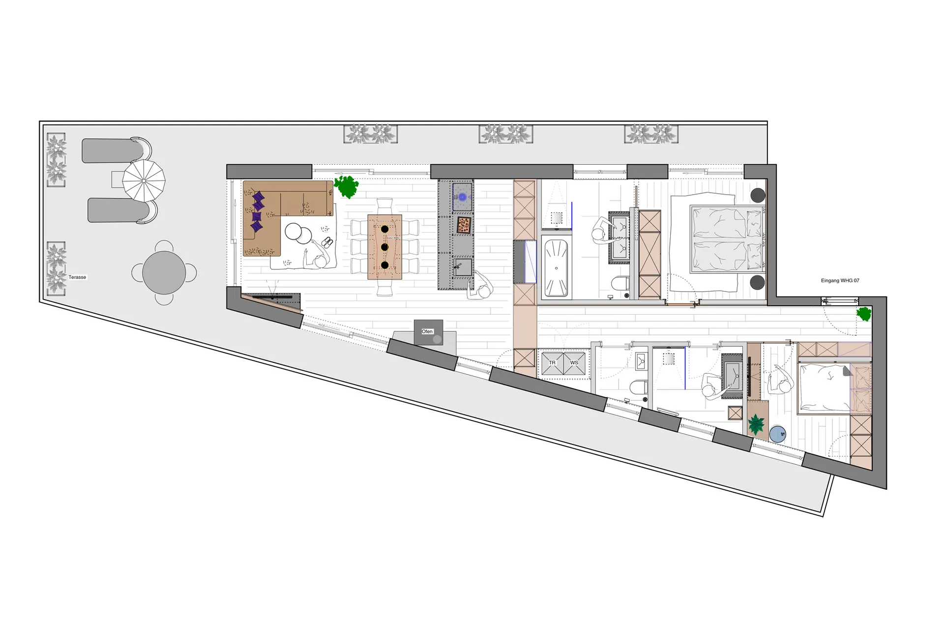
Diese Dachgeschoßwohnung in einem modernen Neubau bietet einen beeindruckenden Ausblick und erstreckt sich über etwa 85 m² Wohnfläche sowie rund 60 m² an Terrassen- und Balkonflächen. Die Fertigstellung erfolgte im Frühjahr 2024.
Vom Eingangsbereich aus betreten Sie den offenen Wohn-, Ess- und Kochbereich, der mit einem Sichtdachstuhl ausgestattet ist. Darüber hinaus umfasst die Wohnung zwei Schlafzimmer, zwei Bäder und ein Gäste-WC. Der Wohnbereich ermöglicht den Zugang zu der großzügigen Terrasse von etwa 60 m², die Ausblick auf das Kitzbüheler Horn bietet.
Ein Kellerraum gehört ebenfalls zur Wohnung.
Zusätzlich können Stellplätze erworben werden:
Ein Tiefgaragenstellplatz für EUR 30.000,00
Ein Freistellplatz für EUR 15.000,00
Vom Eingangsbereich aus betreten Sie den offenen Wohn-, Ess- und Kochbereich, der mit einem Sichtdachstuhl ausgestattet ist. Darüber hinaus umfasst die Wohnung zwei Schlafzimmer, zwei Bäder und ein Gäste-WC. Der Wohnbereich ermöglicht den Zugang zu der großzügigen Terrasse von etwa 60 m², die Ausblick auf das Kitzbüheler Horn bietet.
Ein Kellerraum gehört ebenfalls zur Wohnung.
Zusätzlich können Stellplätze erworben werden:
Ein Tiefgaragenstellplatz für EUR 30.000,00
Ein Freistellplatz für EUR 15.000,00
Ausstattung
Short facts:
- hochwertige Einbauküche
- Möblierung
- Dielenböden
- edle Badausstattung
- Terrastone
- Beleuchtungskonzept
- Raffstore- Sonnenschutzanlage
- Barrierefreie Bauweise
- Kellerraum
- Fahrradraum
- Waschraum
- Personenaufzug
- Tiefgarage mit Autolift
- hochwertige Einbauküche
- Möblierung
- Dielenböden
- edle Badausstattung
- Terrastone
- Beleuchtungskonzept
- Raffstore- Sonnenschutzanlage
- Barrierefreie Bauweise
- Kellerraum
- Fahrradraum
- Waschraum
- Personenaufzug
- Tiefgarage mit Autolift
Lage
In Zentrumslage von St. Johann mit Blick auf das Kitzbüheler Horn und den Wilden Kaiser befindet sich diese Dachgeschoßwohnung.
Aufgrund der zentralen Lage der Wohnung können Sie Restaurants, Shops, Schulen, Schwimmbad, Krankenhaus, uvm. fußläufig erreichen. Dennoch sind Sie auch sofort im Naherholungsgebiet Hinterkaiser. Eine Skibushaltestelle befindet sich ebenfalls in unmittelbarer Nähe.
St. Johann ist das wirtschaftliche Zentrum des politischen Bezirks Kitzbühel und ist daher mit einer hervorragenden Infrastruktur ausgestattet. Kitzbühel liegt nur ca.10 km entfernt.
Aufgrund der zentralen Lage der Wohnung können Sie Restaurants, Shops, Schulen, Schwimmbad, Krankenhaus, uvm. fußläufig erreichen. Dennoch sind Sie auch sofort im Naherholungsgebiet Hinterkaiser. Eine Skibushaltestelle befindet sich ebenfalls in unmittelbarer Nähe.
St. Johann ist das wirtschaftliche Zentrum des politischen Bezirks Kitzbühel und ist daher mit einer hervorragenden Infrastruktur ausgestattet. Kitzbühel liegt nur ca.10 km entfernt.
Ihre Ansprechpartner
Birgit Gogl & Thomas Neuner
Gerne stehen wir Ihnen jederzeit für Fragen zur Verfügung!
Noch Fragen
Gerne bin ich für Sie da!
Tel:
+43 5352 21 696
Mail:
thomas@neuner.immo